Search

Leave a Message

Thank you for your message. We will be in touch with you shortly.

Explore Our Properties

Property Description

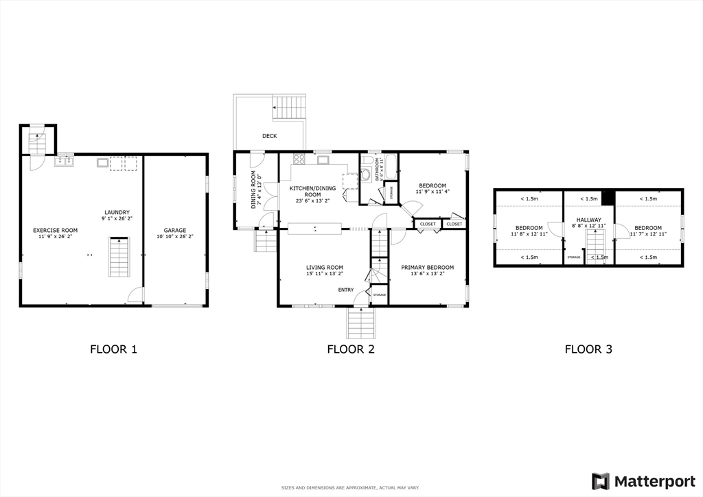
Offer deadline 3 pm Tuesday 7/16. Move right in and enjoy the convenience of a great location with easy access to Rt 2 in this beautifully updated Cape! The open floor plan on the main level makes entertaining a breeze. The modern kitchen features stainless steel appliances, stunning tile floors, and a large island, so you can cook and socialize with ease. French doors lead from the kitchen to a bright sunroom, perfect for relaxing, which opens onto a deck and a fenced backyard with a fire pit - ideal for summer nights and furry friends. The second floor offers apprx 416 sq ft of finished space, perfect for a home office, guest room, or whatever your needs may be. Plus, the unfinished basement with high ceilings has tons of potential for extra living space or storage. This eco-friendly home boasts solar panels to help you save on energy costs, plus a 1-car extra deep garage, perfect for storing a larger vehicle or all your recreational gear. Not to be missed!

Overview

Property Status
Sold
Lot Size
6,000 Sq.Ft.
MLS ID
73262536
Property Type
Residential
Year Built
1945

Features & Amenities

Total Area
1,540 Sq.Ft.
Architecture Styles
Cape
Garage Spaces
1.0
Water Source
Public
Utilites
for Electric Range
Roof
Shingle
Lot Features
Level
Parking
Attached, Under, Paved Drive, Paved
Heat Type
Baseboard, Oil
Air Conditioning
Window Unit(s)
Laundry Room
In Basement
Appliances
Water Heater, Range, Dishwasher, Disposal, Microwave, Refrigerator, Range Hood
Other Interior Features
Sun Room
Sewer
Public Sewer
Substructure
Concrete Perimeter
Green Feature
Solar
Other Exterior Features
Deck, Patio, Rain Gutters, Fenced Yard
Sales Price
$430,000
Real Estate Tax
$4,772/yr
Zoning
Res

Downloads

37 Fruit St

Schedule a Tour

We would love to help you see this beautiful home! As a full-service brokerage, we can help you tour. Please submit an offer, and answer questions about the buying process.

Thank you

for your interest in 37 Fruit St, Leominster, MA 01453

37 Fruit St
Navigate

I'm Interested In

37 Fruit St

Portfolio

  • 91 Dean Rd Sold

    $9,537,000

    91 Dean Road, Weston, MA 02493

    • 6 Beds
    • 9 Baths
    • 10,516 Sq.Ft.
  • 11 Village Ln Sold

    $5,662,500

    11 Village Lane, Needham, MA 02492

    • 7 Beds
    • 9 Baths
    • 11,389 Sq.Ft.
  • 11 Village Ln Sold

    $5,662,500

    11 Village Ln, Needham, MA 02492

    • 7 Beds
    • 9 Baths
    • 11,389 Sq.Ft.
  • 34 Stratford Road For Sale

    $5,495,000

    34 Stratford Road, Needham, MA 02492

    • 7 Beds
    • 8 Baths
    • 10,047 Sq.Ft.
  • 78 Pheasant Landing Road Sold

    $5,489,000

    78 Pheasant Landing Road, Needham, MA 02492

    • 7 Beds
    • 8 Baths
    • 8,257 Sq.Ft.
  • 211 Stratford Rd Sold

    $5,109,000

    211 Stratford Road, Needham, MA 02492

    • 6 Beds
    • 8 Baths
    • 8,778 Sq.Ft.
  • 211 Stratford Road Sold

    $5,109,000

    211 Stratford Road, Needham, MA 02492

    • 6 Beds
    • 8 Baths
    • 8,778 Sq.Ft.
  • 140 Whitman Rd Sold

    $4,750,000

    140 Whitman Road, Needham, MA 02492

    • 6 Beds
    • 8 Baths
    • 8,852 Sq.Ft.
  • 21 Deerfield Rd Sold

    $4,725,000

    21 Deerfield Road, Wellesley, MA 02481

  • 35 Lenox St Sold

    $4,100,000

    35 Lenox Street, Newton, MA 02465

    • 5 Beds
    • 5 Baths
    • 5,048 Sq.Ft.
  • 35 Lenox St Sold

    $4,100,000

    35 Lenox St, Newton, MA 02465

    • 5 Beds
    • 5 Baths
    • 5,048 Sq.Ft.
  • 25 Haven St Sold

    $3,600,000

    25 Haven Street, Dover, MA 02030

    • 6 Beds
  • 49 Wilsondale St Sold

    $3,450,000

    49 Wilsondale Street, Dover, MA 02030

    • 5 Beds
    • 7 Baths
    • 8,054 Sq.Ft.
  • 19 Abbott Rd Sold

    $3,400,000

    19 Abbott Road, Wellesley, MA 02481

    • 5 Beds
    • 5 Baths
    • 5,100 Sq.Ft.
  • 19 Abbott Rd Sold

    $3,400,000

    19 Abbott Rd, Wellesley, MA 02481

    • 5 Beds
    • 5 Baths
    • 5,100 Sq.Ft.
  • 78 Birds Hill Ave Pending

    $3,295,000

    78 Birds Hill Ave, Needham, MA 02492

    • 6 Beds
    • 7 Baths
    • 5,800 Sq.Ft.
  • 59 Dartmouth Ave Sold

    $3,207,550

    59 Dartmouth Avenue, Needham, MA 02494

    • 6 Beds
  • 22 Eaton Rd Sold

    $3,200,000

    22 Eaton Rd, Needham, MA 02492

    • 5 Beds
    • 7 Baths
    • 6,165 Sq.Ft.
  • 60 Karen Rd Sold

    $3,197,214

    60 Karen Road, Newton, MA 02468

    • 6 Beds
    • 8 Baths
    • 7,937 Sq.Ft.
  • 362 Hillcrest Rd Sold

    $3,160,000

    362 Hillcrest Road, Needham, MA 02492

    • 5 Beds
    • 6 Baths
    • 6,072 Sq.Ft.
  • 362 Hillcrest Rd Sold

    $3,160,000

    362 Hillcrest Rd, Needham, MA 02492

    • 5 Beds
    • 6 Baths
    • 6,072 Sq.Ft.
  • 44 Stearns St Sold

    $3,100,000

    44 Stearns Street, Newton, MA 02459

    • 5 Beds
    • 5 Baths
    • 5,000 Sq.Ft.
  • 25 Byron Rd Sold

    $3,080,000

    25 Byron Road, Weston, MA 02493

    • 5 Beds
    • 5 Baths
    • 5,802 Sq.Ft.
  • 39 Hawthorne Ave Sold

    $3,060,000

    39 Hawthorne Avenue, Newton, MA 02466

    • 5 Beds
    • 5 Baths
    • 5,019 Sq.Ft.
  • 19 Kelveden Rd Sold

    $3,050,000

    19 Kelveden Rd, Newton, MA 02468

    • 4 Beds
    • 4 Baths
    • 4,780 Sq.Ft.
  • 75 Judith Rd Sold

    $3,050,000

    75 Judith Road, Newton, MA 02459

    • 5 Beds
    • 6 Baths
    • 5,430 Sq.Ft.
  • 530 Chestnut St Sold

    $3,007,500

    530 Chestnut St, Newton, MA 02468

    • 4 Beds
    • 6 Baths
    • 3,680 Sq.Ft.
  • 530 Chestnut St Sold

    $3,007,500

    530 Chestnut Street, Newton, MA 02468

    • 4 Beds
    • 6 Baths
    • 3,680 Sq.Ft.
  • 1573 Beacon St Sold

    $2,822,500

    1573 Beacon Street, Newton, MA 02468

    • 6 Beds
    • 7 Baths
    • 6,740 Sq.Ft.
  • 20 Pinewood Rd Sold

    $2,800,000

    20 Pinewood Rd, Needham, MA 02492

    • 6 Beds
    • 6 Baths
    • 5,190 Sq.Ft.
  • 20 Pinewood Rd Sold

    $2,800,000

    20 Pinewood Road, Needham, MA 02492

    • 6 Beds
    • 6 Baths
    • 5,190 Sq.Ft.
  • 280 Greendale Ave Sold

    $2,745,000

    280 Greendale Ave, Needham, MA 02494

    • 7 Beds
    • 9 Baths
    • 7,772 Sq.Ft.
  • 395 Winchester Street Sold

    $2,745,000

    395 Winchester Street, Newton, MA 02461

    • 7 Beds
    • 8 Baths
    • 5,673 Sq.Ft.
  • 179 Melrose Ave Sold

    $2,725,000

    179 Melrose Ave, Needham, MA 02492

    • 4 Beds
    • 6 Baths
    • 5,261 Sq.Ft.
  • 45 Rockwood Lane Sold

    $2,680,000

    45 Rockwood Lane, Needham, MA 02492

    • 5 Beds
    • 6 Baths
    • 6,061 Sq.Ft.
  • 103 Paul Revere Rd Sold

    $2,537,000

    103 Paul Revere Rd, Needham, MA 02494

    • 6 Beds
    • 5 Baths
    • 4,957 Sq.Ft.
  • 12 Merrill Street Sold

    $2,500,000

    12 Merrill Street, Cambridge, MA 02139

    • 9 Beds
    • 3 Baths
    • 3,429 Sq.Ft.
  • 7 Turner Rd Sold

    $2,490,000

    7 Turner Rd, Wellesley, MA 02482

    • 5 Beds
    • 4 Baths
    • 4,011 Sq.Ft.
  • 11 Mossfield Road Sold

    $2,470,000

    11 Mossfield Road, Newton, MA 02468

    • 3 Beds
    • 4 Baths
    • 3,438 Sq.Ft.
  • 111 Elgin St Sold

    $2,455,000

    111 Elgin St, Newton, MA 02459

    • 5 Beds
    • 4 Baths
    • 3,489 Sq.Ft.
  • 660 South Street Sold

    $2,450,000

    660 South Street, Needham, MA 02492

    • 6 Beds
    • 5 Baths
    • 8,337 Sq.Ft.
  • 40 Lake Dr. Sold

    $2,300,000

    40 Lake Dr., Needham, MA 02492

    • 5 Beds
    • 7 Baths
    • 4,247 Sq.Ft.
  • 20 Windsor Road Sold

    $2,289,000

    20 Windsor Road, Needham, MA 02492

    • 4 Beds
    • 4 Baths
    • 4,552 Sq.Ft.
  • 33 Bond Sold

    $2,265,000

    33 Bond, Needham, MA 02492

    • 4 Beds
    • 3 Baths
    • 3,199 Sq.Ft.
  • 18 Newbury Park Sold

    $2,225,000

    18 Newbury Park, Needham, MA 02492

    • 5 Beds
    • 3 Baths
    • 3,406 Sq.Ft.
  • 8 Poets Path Sold

    $2,225,000

    8 Poets Path, Wayland, MA 01778

    • 4 Beds
    • 4 Baths
    • 5,106 Sq.Ft.
  • 7 Tudor Road Sold

    $2,200,000

    7 Tudor Road, Needham, MA 02492

    • 5 Beds
    • 4 Baths
    • 4,219 Sq.Ft.
  • 12 Harvard Cir Sold

    $2,075,000

    12 Harvard Cir, Needham, MA 02494

    • 5 Beds
    • 6 Baths
    • 3,600 Sq.Ft.
  • 429 Warren St Sold

    $2,050,000

    429 Warren St, Needham, MA 02492

    • 5 Beds
    • 4 Baths
    • 5,524 Sq.Ft.
  • 42 Pennsylvania Ave # 42 Sold

    $2,000,000

    42 Pennsylvania Ave # 42, Newton, MA 02464

    • 6 Beds
    • 6 Baths
    • 5,228 Sq.Ft.
View All

Follow Us On Instagram